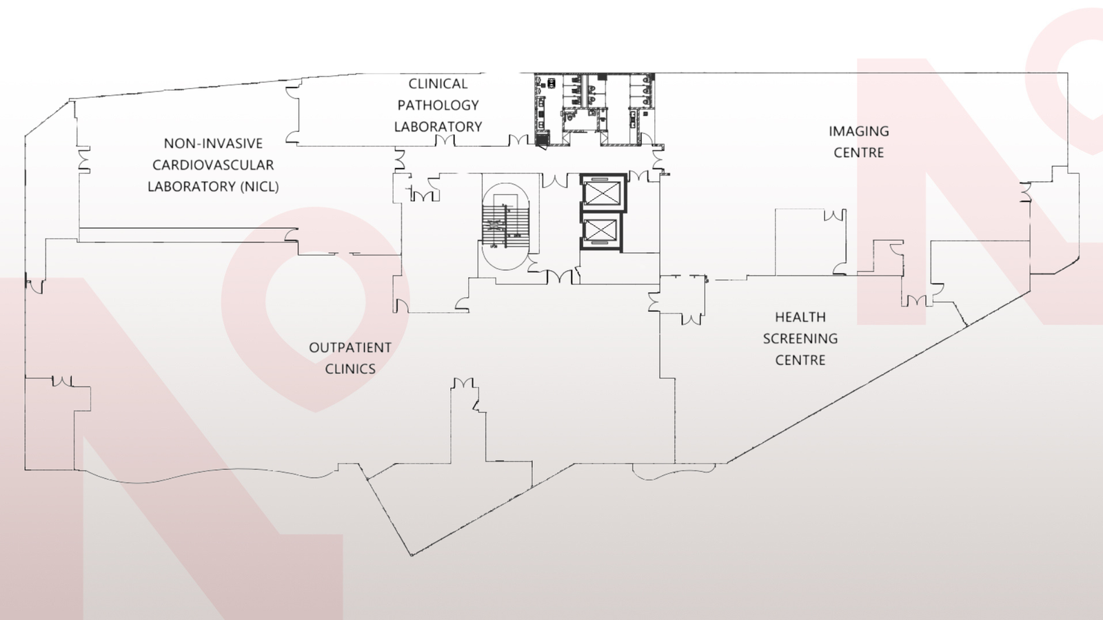
Level 5
Staircase
Public Lift
Clinical Pathology Laboratory Operating Hours:
24 Hours
NICL Operating Hours:
Monday - Fridays: 8:30am to 5:00pm
Saturdays: 8:30am to 1:00pm
Sundays and Public Holidays: Closed
Health Screening Centre Operating Hours:
Monday - Fridays: 8:30am to 5:00pm
Saturdays: 8:30am to 1:00pm
Sundays and Public Holidays: Closed
Imaging Centre Operating Hours:
Monday - Fridays: 8:30am to 5:00pm
Saturdays: 8:30am to 1:00pm
Sundays and Public Holidays: Closed
Outpatient Clinics Operating Hours:
Monday - Fridays: 8:30am to 5:00pm
Saturdays: 8:30am to 1:00pm
Sundays and Public Holidays: Closed
Washroom
